Toggle navigation
843-213-1672
About
Projects
View All
Corporate
Hospitality
Education
Restaurant/Retail
News
Contact
843-213-1672
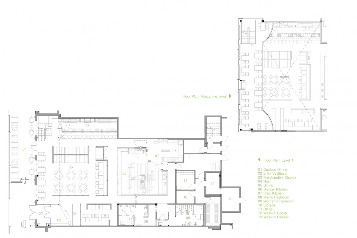
Wahlburgers
Previous
All Projects
Next