Toggle navigation
843-213-1672
About
Projects
View All
Corporate
Hospitality
Education
Restaurant/Retail
News
Contact
843-213-1672
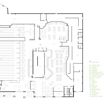
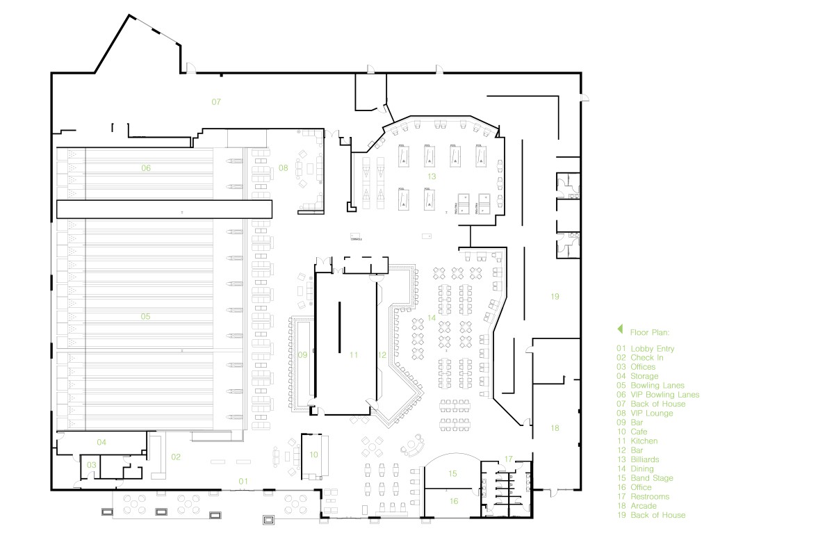
810 Billiards & Bowling
Market Common, Myrtle Beach
Interior Renovation
42,580 sf
Owner: 810 Billards & Bowling
Previous
All Projects
Next