Co Sushi, Market Common

Myrtle Beach, SC Interior Renovation 2,000 sf Co Sushi

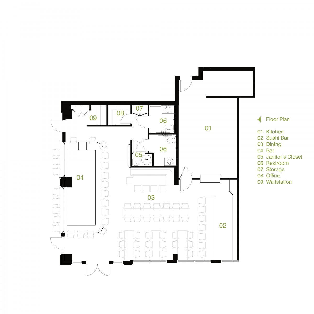
CO Sushi is a 2,000 sf restaurant at Market Common, Myrtle Beach. This project was an interior renovation to an existing retail store. e3 studio worked hand in hand with the Landlord, Tenant, and Contractor to complete this project within four months including construction documents. 

The interior design of this project takes cues from the established CO Restaurant located in Charleston, SC. There is a balance mix of old materials with new contemporary materials for a unique interior setting. Lighting control was another major factor in creating the inviting dining room. The floor plan is arranged in a very efficient manner maximizing the amount of seating while allowing for a very functional kitchen at the same time. Overhead garage doors were punched into the existing exterior wall of the building to allow a connection between the interior and exterior bar. Moreover, an exterior dining area provides a much desired outdoor social setting.