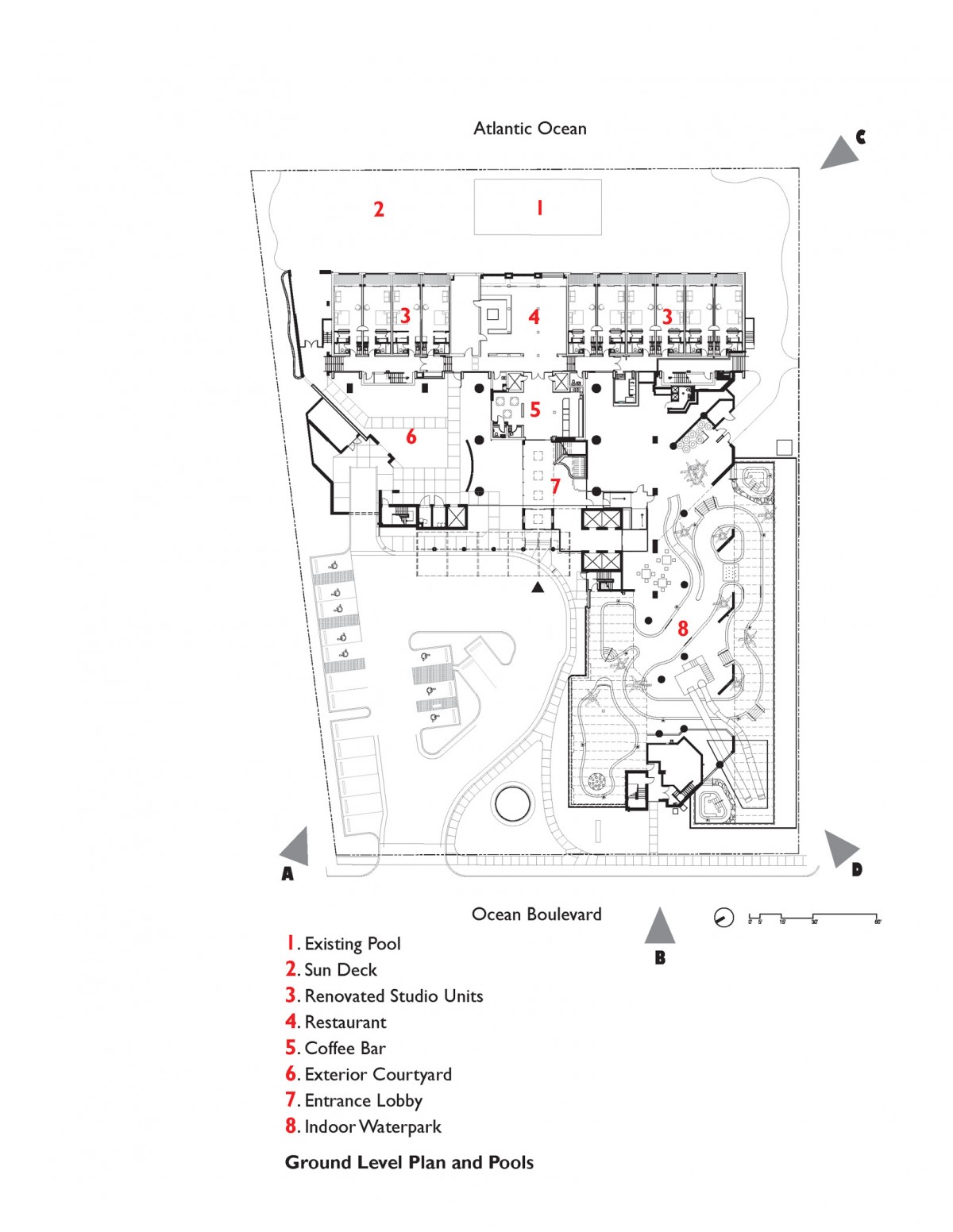
Dunes Village Resort

Myrtle Beach, SC 270,000 sf - 231 units Dunes Village Resort

Elevated 6 stories above a pre-existing 1970s-era hotel, the Pan American and Palmetto Towers form a resort hotel that includes 142 new bedroom units,  a restaurant, coffee shop, water park and pools, as well as 80 renovated studio units in the existing Pan American Hotel. Located on Myrtle Beach’s oceanfront, the siting and orientation of the building maximize views to the ocean for every unit in the project. Elevated planter beds and architectural accent lighting establish a sense of rhythm and add a human scale that integrates the 13-story condo hotel into the surrounding context. 

Project reflects work completed at Timbes Architectural Group.