Horry Georgetown Technical College Wavenet

Conway Campus Building Addition 3,000 sf Horry Georgetown Technical College

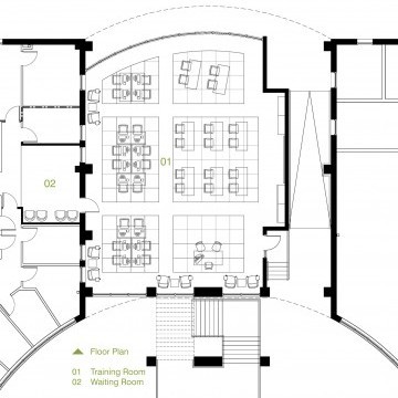
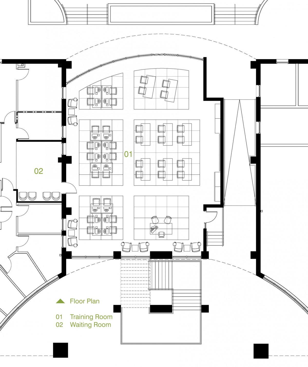
The Wavenet Training Room Addition at HGTC is nestled in what was a large exterior breezeway in the middle of the admissions + auditorium building on campus.

The administration at HGTC had the following criteria: they wanted the addition to keep within the same language as the existing building and not to appear as an addition; they wanted it to have an “first impression” appeal for prospective students; they wanted a level of transparency from one courtyard to the other; they needed the space to be very flexible and function as a multi-use space; and they wanted it to have more vitality and interest than their typical spaces.

The primary design concept was to really focus on connection between inside and outside. The solution was to create two opposing glass facades, which blur the boundary between interior and exterior. The two glass facades provide transparency and visual connection between the two courtyards on either side of the addition. To further reinforce the connection, the existing exterior building façade is used as the new interior wall creating a continuous brick plane from exterior to interior. 

The exterior of the addition takes cues from the existing building to allow the addition to blend within its context. Brick to match the existing building was used for the solid facades and treatment of fenestrations mimics the existing openings. To accentuate the space as a “first impression” entry point for the college, blue cove lighting is used to accent the transom level of the glazing.  Moreover, a full wall graphic with the college’s branding image can be seen through the glazing at all times.

The primary function of the space is a large training center. However, it is also a multi-use space, which can be configured in various ways for many types of functions. When needed, the space is divided with translucent, moveable panels. The design of the space is set up on a grid, reflected on two planes, to demarcate circulation and activity areas. The grid is articulated with a change in floor pattern and a series of floating ceilings. The grid sets up a datum for intuitive means of reconfiguring the space. The “void” areas demarcate circulation, and “positive” areas demarcate activity areas.

The interior design of the space is visionary in its use of material, color and lighting. To further reinforce the grid language of the space, cherry wood ceiling panels are used and are mimicked below on the floor level with solid and patterned carpet tiles. A monochromatic use of blue is used to accent the space. Blue is used in the carpet, divider panels, furniture, and cove lighting. The lighting is very versatile for the various functions and user controllability integrating dimmable linear lighting, can downlights, and ambient blue accent lighting.