Toggle navigation
843-213-1672
About
Projects
View All
Corporate
Hospitality
Education
Restaurant/Retail
News
Contact
843-213-1672
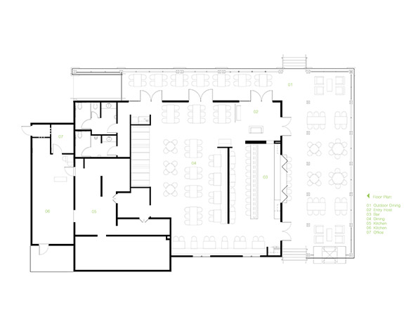
Blueberry’s Grill
Barefoot Landing, North Myrtle Beach
New Construction: Architecture, Interior Design, FF&E
5355 sf
Burroughs & Chapin
Previous
All Projects
Next