Hotel Blue Lobby Renovation

Myrtle Beach, SC Interior Renovation 2,000 sf Hotel Blue

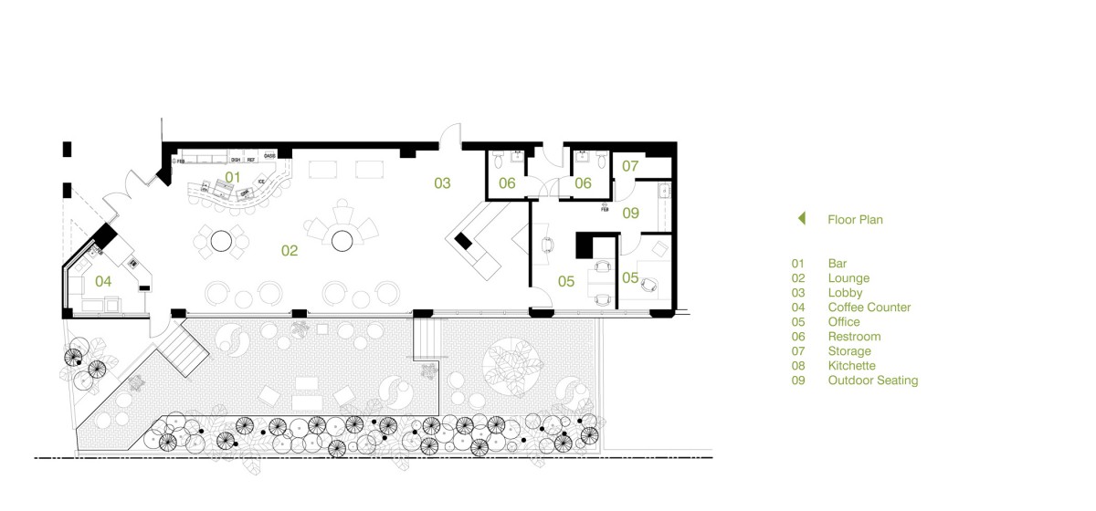
Hotel Blue was completed in collaboration with WHCI as a design build project. The existing space consisted of a traditional lobby check in desk with support spaces behind. The existing ceilings and walls were all eliminated to create an open, contemporary check in area that also functions as a lounge space. The dual function space allows guests to have a pleasant experience when checking in. Moreover, the existing storefront was replaced by overhead glass doors allowing the space to be opened up to the outside connecting it to the new outdoor lounge space. The interior design incorporates bold accent colors, a unique swing lounge bench, and a beautiful glass bar top that emulates water.